Desain Rumah 7X10 Meter 2 Lantai
Atur Pembelian

Domora Arsitek
Verified Seller
Rp1.150.000 Original price was: Rp1.150.000.Rp350.000Current price is: Rp350.000.
Kelengkapan :
- Denah
- Gambar Kerja
- Fasad
- RAB
- Video
Desain Rumah 7X10 Meter
Sedang mencari inspirasi desain rumah 7×10 meter yang cocok untuk keluarga kecil hingga menengah? Desain rumah siap pakai, file lengkap yang berisi gambar denah, tampak depan, potongan, rencana bangunan, hingga detail konstruksi dari rumah berukuran 7×10 meter dengan 2 lantai.
Desain rumah ini dirancang secara efisien dan fungsional, dengan pembagian ruang yang jelas antara area publik, privat, dan servis. Cocok digunakan sebagai referensi proyek bangunan rumah atau bahan belajar bagi mahasiswa arsitektur. Dengan ukuran yang ideal untuk lahan terbatas, desain ini menawarkan kenyamanan dan tata ruang yang optimal untuk kebutuhan keluarga modern.
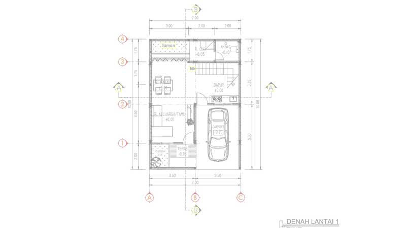
Denah Rumah 7X10 Meter, 2 Lantai
Dalam desain rumah 7×10 meter 2 lantai ini, setiap lantai memiliki fungsi dan pembagian ruang yang dirancang untuk kenyamanan serta efisiensi. Berikut penjelasan lengkapnya:
Lantai 1: Area Aktivitas Bersama dan Servis
Lantai dasar lebih difokuskan untuk aktivitas bersama keluarga dan kebutuhan fungsional rumah tangga. Ruang-ruangnya antara lain:
- Carport. Area parkir kendaraan yang terletak di bagian depan rumah, memudahkan akses masuk dan keluar.
- Teras. Ruang transisi sebelum masuk ke dalam rumah, bisa digunakan untuk duduk santai atau menyambut tamu.
- Ruang Keluarga / Ruang Tamu. Area utama untuk berkumpul, bersantai, atau menerima tamu. Terletak strategis di tengah rumah.
- Ruang Makan. Berada bersebelahan dengan ruang keluarga, menciptakan suasana makan yang hangat dan terhubung.
- Dapur. Terletak di bagian belakang, dapur ini dirancang efisien dengan akses mudah ke ruang makan dan ruang servis.
- Kamar Mandi / WC. Disediakan kamar mandi umum yang mudah dijangkau oleh penghuni dan tamu.
- Ruang Cuci. Area khusus untuk mencuci dan mengelola pakaian, berada dekat dengan dapur untuk efisiensi aktivitas.
- Taman Belakang. Area terbuka di belakang rumah yang berfungsi untuk sirkulasi udara, pencahayaan alami, dan relaksasi.
Lantai 2: Zona Privat dan Istirahat
Lantai dua pada desain rumah ini difokuskan untuk aktivitas pribadi dan istirahat keluarga. Pembagian ruangnya sebagai berikut:
- Kamar Tidur Utama. Kamar terbesar di lantai dua, memiliki pencahayaan dan ventilasi yang baik untuk kenyamanan maksimal.
- Kamar Tidur Anak 1 & 2. Dua kamar tambahan untuk anak atau anggota keluarga lainnya. Dirancang cukup luas dan nyaman.
- Ruang Kerja / Belajar. Area khusus untuk bekerja dari rumah atau mendukung kegiatan belajar anak.
- Kamar Mandi / WC. Kamar mandi tambahan untuk penghuni lantai atas, memberikan kemudahan akses tanpa harus turun ke lantai bawah.
- Void. Ruang terbuka vertikal di tengah rumah yang membantu sirkulasi udara dan cahaya alami ke seluruh area rumah.
Desain rumah 7×10 meter ini cocok untuk kamu yang ingin membangun rumah di lahan terbatas, tapi tetap ingin hunian yang nyaman, sehat, dan fungsional. Rumah ini memiliki desain yang kompak dan efisien, dengan tata ruang yang dirancang untuk menunjang kenyamanan dan fungsi rumah secara maksimal.
- Lantai 1 dirancang sebagai area publik, ideal untuk berkumpul dan berinteraksi bersama keluarga dan tamu.
- Lantai 2 merupakan zona privat, tempat yang tenang untuk istirahat dan aktivitas pribadi.
Ditambah lagi, kehadiran void di bagian tengah rumah serta taman belakang menjadikan sirkulasi udara dan pencahayaan alami lebih maksimal. Hasilnya? Rumah terasa lebih sejuk, terang, dan sehat untuk ditinggali setiap hari.
Dapatkan File Desain Rumah 7×10 Meter Siap Pakai. Untuk Anda yang ingin menjadikan desain ini sebagai referensi atau bahkan dasar proyek pembangunan, tersedia 5 file penting yang bisa Anda dapatkan:
- File RAB (.xls) – Rencana anggaran biaya dalam format Excel, memudahkan perhitungan biaya bangun rumah.
- Video Animasi 3D – Visualisasi rumah secara realistis dari berbagai sudut.
- File JPG – Gambar tampilan 3D sebagai preview.
- File PDF – Kompilasi lengkap dari semua gambar kerja dan elemen penting.
- Gambar Denah & Potongan – Untuk pemahaman struktur dan ruang yang lebih jelas.
Jangan lewatkan kesempatan untuk mendapatkan referensi desain rumah 7×10 meter lengkap dengan file siap pakai. Cocok untuk arsitek pemula, mahasiswa, atau siapa pun yang ingin membangun rumah impian secara efisien.




